Lot 52 No.11 Cox Creek Rd, Crafers

Download PDF

Lot 52 No.11 Cox Creek Rd, Crafers

Contemporary House & Land Opportunity in Crafers

Designed for modern Adelaide Hills living, this beautifully appointed single-storey home combines architectural style, functional design, and quality inclusions.

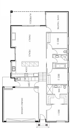
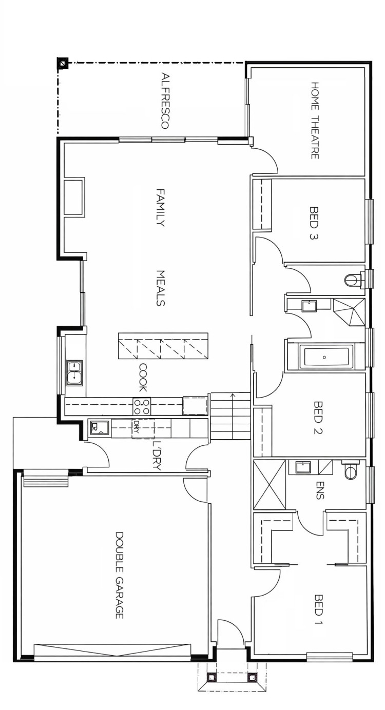
The split level floor plan offers three spacious bedrooms, a private master suite with ensuite and walk in robe, and a separate home theatre positioned at the rear of the home. At its heart, an open-plan kitchen, meals and family zone connects seamlessly to a covered alfresco, making it ideal for both everyday living and entertaining.

The home is finished with a striking contemporary façade featuring bricks, cladding and render, complemented by a timber entry door.

Located in the leafy suburb of Crafers, this home offers easy access to the South Eastern Freeway, local schools, cafés, and everyday amenities—delivering a lifestyle that balances natural beauty with modern convenience.

Three allotments are available, offering flexibility to secure your preferred site and build a brand-new home in this highly sought-after hills location.

Premium Inclusions:

  • 2700mm ceilings throughout
  • 20mm Caesarstone kitchen benchtops
  • 900mm appliance package
  • Gold Range tiling to bathrooms
  • Timber laminate flooring to living areas
  • Carpet to bedrooms and walk-in robe
  • Ducted reverse-cycle air conditioning
  • Solar PV system
  • R5 ceiling insulation and R2 wall insulation
  • Tiling to alfresco and porch
  • Auto panel-lift garage door
  • Generous footings and siteworks allowance

Disclaimer: All care has been taken in the preparation of this material. No responsibility is taken for any errors or omissions. Details are subject to change without notification. Images for illustration purposes only. E&OE.


Floor Plan updated v2

House & Land Package


Facade Render

Lot 52 No.11 Cox Creek Rd, Crafers

Package Priced from $1,470,000

Details

3
Bed
2
Bth
2
Car

Width: 11.00 m
Depth: 20.00 m
Location: Hills

This Package Includes

  • 2700mm ceilings throughout
  • 20mm Caesarstone kitchen benchtops
  • 900mm appliance package
  • Gold Range tiling to bathrooms
  • Timber laminate flooring to living areas
  • Carpet to bedrooms and walk-in robe
  • Ducted reverse-cycle air conditioning
  • Solar PV system
  • R5 ceiling insulation and R2 wall insulation
  • Tiling to alfresco and porch
  • Auto panel-lift garage door
  • Generous footings and siteworks allowance

House & Land Package


Lot 52 No.11 Cox Creek Rd, Crafers

Package Priced from $1,470,000

Floor Plan updated v2