Lot 35 Etona Court, Avoca Dell

Download PDF

Lot 35 Etona Court, Avoca Dell

Design can be changed to suit client requirements, either minor or completely changed.

  • 2700 Ceilings
  • Auto Panel lift garage doors
  • Facade as per image
  • Ducted Reverse cycle aircon
  • Solar Pv System (up to 6.6kw)
  • R5 insulation to ceilings, R2.5 to external & internal walls
  • 20 mm Caesarstone benchtops to kitchen
  • 900mm appliance package
  • LED downlight package
  • Tiling to alfresco, porch
  • Flooring Timber laminate to living, Carpet to Bedrooms
  • Generous footings/ Siteworks allowance
  • Stormwater

 

Disclaimer: All care has been taken in the preparation of this material. No responsibility is taken for any errors or omissions. Details are subject to change without notification. Images for illustration purposes only. E&OE.


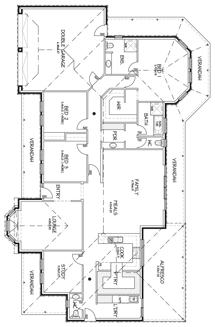
Springton Custom Country Floorplan Copy

House & Land Package


Springton Elevation Custom Country Ex Img web 13

Lot 35 Etona Court, Avoca Dell

Package Priced from $980,000

Details

3
Bed
3
Bth
2
Car

Area Total: 333 m2
Width: 25.00 m
Depth: 15.00 m
Location: Hills

This Package Includes

  • 2700 Ceilings
  • Auto Panel lift garage doors
  • Facade as per image
  • Ducted Reverse cycle aircon
  • Solar Pv System (up to 6.6kw)
  • R5 insulation to ceilings, R2.5 to external & internal walls
  • 20 mm Caesarstone benchtops to kitchen
  • 900mm appliance package
  • LED downlight package
  • Tiling to alfresco, porch
  • Flooring Timber laminate to living, Carpet to Bedrooms
  • Generous footings/ Siteworks allowance
  • Stormwater

House & Land Package


Lot 35 Etona Court, Avoca Dell

Package Priced from $980,000

Springton Custom Country Floorplan Copy