27 Schomburgk Drive, Gawler East

Download PDF

27 Schomburgk Drive, Gawler East

FIXED Price Customised Home and Land package with most of the work done already!


Inclusions:

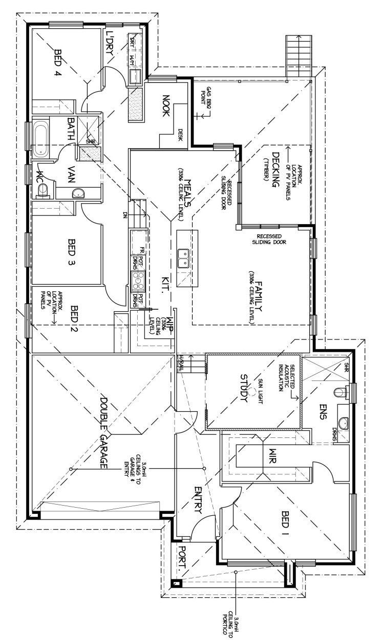
  • 3386mm celling in family, meals, deck, kitchen and WIP.
  • 3000mm to entry and garage, 2.7m to rest.
  • Includes decking with steps and balustrade with recessed sliding doors.
  • Split level design to work with the block and views.
  • Land price $300K.
  • Includes all joinery as per floor plan with 900mm bulkheads.
  • Floor to Ceiling tiles in ENS and bath with shower Niche and Sq set cornice.
  • 2.4m high doors throughout, upgraded entry door & cavity doors as per plan.
  • Acoustic insulation and sun light to study (Home Theatre).
  • Stone bench tops to kitchen and pantry with glass splashback to kitchen.
  • Upgraded front façade as per drawings.
  • Some Turnkey options can be added.
  • Build is fully customisable & will receive Rossdale Homes’ Absolute Fixed Price Guarantee!
  • SA Owned & operated builder with over 40 years of building excellence.

Disclaimer: All care has been taken in the preparation of this material. No responsibility is taken for any errors or omissions. Details are subject to change without notification. Images for illustration purposes only. E&OE.


lot 520 schomburgk Floor Plan0

House & Land Package


Rockleigh Contemporary1 web ScaleHeightWzEwMDBd

27 Schomburgk Drive, Gawler East

Fixed Priced $889,674

Details

4
Bed
2
Bth
2
Car

Area Total: 272 m2
Living: 196 m2
Width: 13.90 m
Depth: 23.80 m
Location: North

This Package Includes

  • 3386mm celling in family, meals, deck, kitchen & WIP.
  • 3000mm to entry and garage, 2.7m to rest.
  • Includes decking with steps & balustrade
  • Recessed sliding doors.
  • Split level design to work with the block & views.
  • Includes all joinery as per floor plan
  • Floor to Ceiling tiles in Ensuite & bath
  • 2.4m high doors throughout, upgraded entry door & cavity doors as per plan.
  • Acoustic insulation & sun light to study (Home Theatre).
  • Stone bench tops to kitchen and pantry with glass splashback to kitchen.
  • Upgraded front façade as per drawings.

House & Land Package


27 Schomburgk Drive, Gawler East

Package Priced from $889,674

lot 520 schomburgk Floor Plan0